Morinoen_real_estate
4BED/1BATH in Setagaya-ku,Tokyo
4BED/1BATH in Setagaya-ku,Tokyo
常规价格
249,000,000 JPY
常规价格
促销价
249,000,000 JPY
单价
单价
含税费。

Overview
Single townhouse property.
Good location, 7 minute walk from Komazawa-Daigaku Station.
Located in one of the safest and the most high-end traditional residential area.
Very spacious and many rooms. Even big family can live comfortably and you can use each room for your business, hobby, or other purposes.
Has a Japanese style room and you can enjoy the Japanese culture taste. Japanese style rooms are decreasing and quite rare in Tokyo nowadays.
Property Details
| Location | Setagaya-ku |
| Nearest station | Komazawa-Daigaku Station |
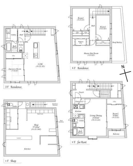
| Floor plan | 1F Shop, 2F 1Bed 1Bath Living, 3-4F 4Bed/1Bath Living |
| Floor size | 2430.06sqft(225.76㎡) |
| Balcony size | |
| Floor | 4 story building |
| Repair reserve fee | |
| Maintenance fee | |
| Year built | 2012 |
| Land rights | Ownership |
| Available from | Please inquire |
| Transaction Type | Brokerage |
Features, Facilities, and Equipment
・Please inquire
Location map
Care information
Care information
